0 ₽
Мы находимся в Махачкале
По адресу улица Нурадилова, 93. Приходите мы всегда Вам рады!
- Обзор
- Характеристики
- Отзывы (0)
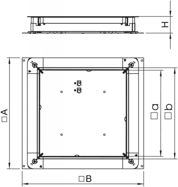
Монтажное основание под заливку в бетон, для применения с кабельными каналами скрытой установки в стяжке.
UZD 250-3, Монтажное основание UZD250-3 (h=70-125 мм) 410x367x70 мм (сталь), кратность поставки 1 шт. Монтажное основание UZD250-3 (h=70-125 мм) 410x367x70 мм (сталь) отзывы
About this product reviews yet. Be the first!
 RUB
RUB USD
USD EUR
EUR



